Trilocale in vendita

Carpi, Via Donato Bramante - Carpi Nord Ovest
€ 168.000
Prezzo aggiornato
3 locali 3 locali
85 Mq 85 Mq
1 bagno 1 bagno

Trilocale in vendita

Carpi, Via Donato Bramante - Carpi Nord Ovest

Descrizione annuncio

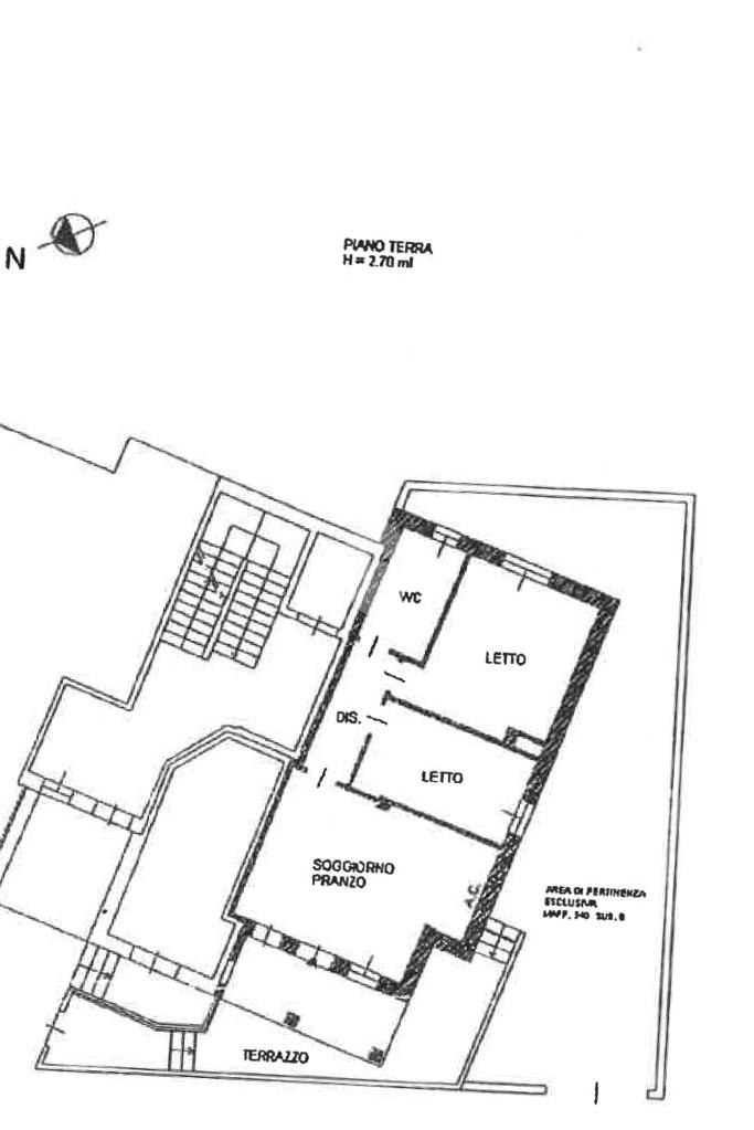
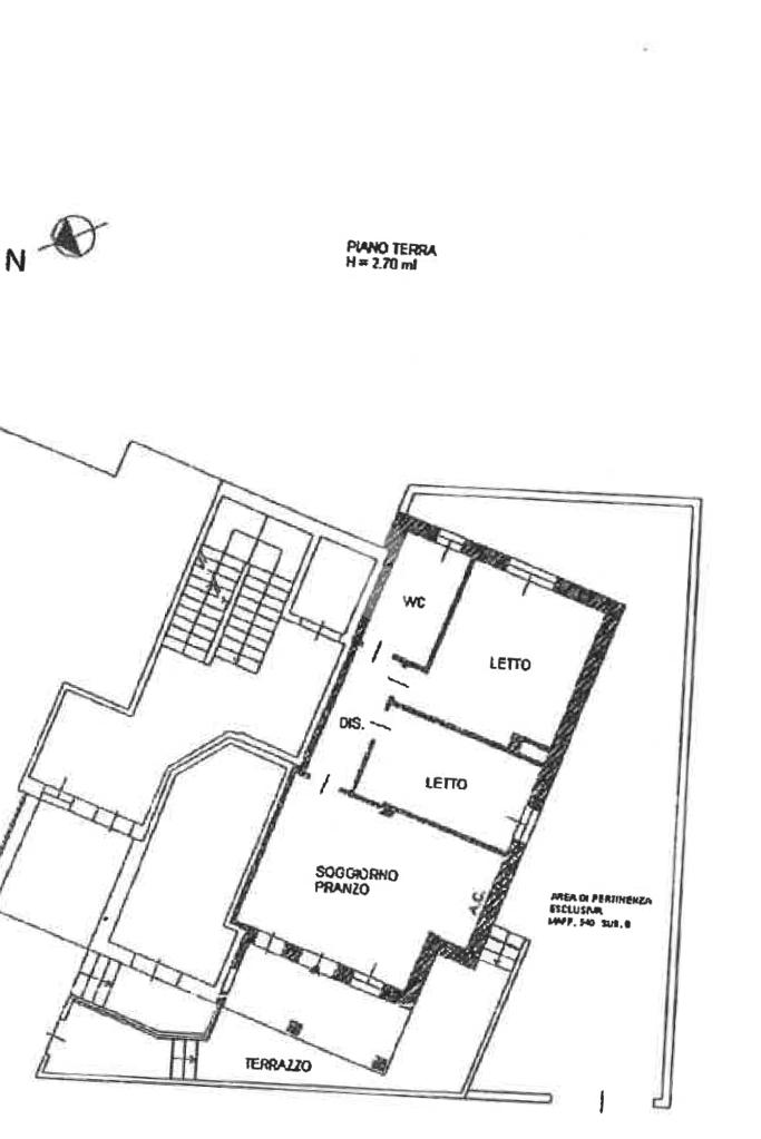
Carpi Nord, proponiamo una maisonette che unisce comfort e praticità. Costruito nel 2008, l'immobile si distingue per l'ingresso indipendente e l'area cortiliva esclusiva, ideale per chi cerca uno spazio esterno privato.

l'appartamento offre un soggiorno con angolo cottura accogliente, una camera da letto matrimoniale, una camera singola e un bagno ben rifinito. La presenza di una veranda esterna aggiunge un ulteriore spazio all'aperto, perfetto per momenti di relax.

Completano la proprietà un box e un posto auto interno alla proprietà, garantendo comodità di parcheggio.

Situato in un contesto piacevole e ben servito, l'appartamento è pronto per essere abitato. Una soluzione ideale per chi desidera vivere in una zona tranquilla senza rinunciare ai servizi cittadini.

Per maggiori informazioni contattateci allo 059653377 oppure venite a trovarci presso il nostro ufficio sito in Viale Manzoni 71/73 Carpi

Mostra tutto

Nelle vicinanze

Trasporto pubblico Trasporto pubblico
stazione di Carpi
stazione di Carpi
2,3 Km
Peruzzi 3
Peruzzi 3
2,1 Km
Carpi Piscine
Carpi Piscine
2,1 Km
Ricariche auto elettriche Ricariche auto elettriche
Carpi Brunelleschi | EnelX
170 m
Carpi Benassi | EnelX
1,4 Km
Carpi Morgagni | EnelX
1,8 Km
Stazione di Carpi | EnelX
2,1 Km
Carpi Fossoli | EnelX
2,1 Km
Scuole Scuole
Scuola Primaria Statale “Giovanni Pascoli”
1,9 Km
Centro di Formazione Professionale "Nazareno"
2,1 Km
Scuola Media Statale “Alberto Pio”
2,1 Km
Liceo Scientifico Statale "M. Fanti"
2,2 Km
Istituto Professionale Statale "G. Vallauri"
2,2 Km
Farmacia Farmacia
Farmacia della Salute
2,1 Km
Farmacia dell'Assunta
2,1 Km
Farmacia GRECO
2,3 Km
San Bernardino
2,7 Km
Farmacia del popolo
2,8 Km
Ospedali Ospedali
Ospedale Ramazzini
1,7 Km
Supermercati Supermercati
Famila
660 m
Eurospin
1,1 Km
MD
1,1 Km
EuroSpin
1,1 Km
Conad
1,3 Km
Bar Bar
Bar
1,8 Km
Cookies
2,1 Km
Mattatoio
2,1 Km
Bar Scazza 24H Non Stop
2,2 Km
Ristoranti Ristoranti
Lo Zodiaco
1,2 Km
Ristorante Giapponese
1,4 Km
Clorofilla
1,7 Km
Ristorante La Mistica
1,9 Km
Follie Di Sapori
1,9 Km
Mostra tutto

Caratteristiche

Rif.:
61117528
Piano:
Terra con giardino di 4 con ascensore
Totale piani:
4
Box:
1
Posti auto:
1
Terrazzi:
1
Mostra tutto
Prezzo Prezzo
€ 168.000
Rata mutuo Rata mutuo
€ 774 / mese
Spese annue Spese annue
€ 1
Proponi il tuo prezzoProponi il tuo prezzo

Classe Energetica

G
G
G
G
G
G
G
G
G
EP invernale del fabbricato:
EP estiva del fabbricato:
Anno di costruzione:
2008
Riscaldamento:
Autonomo
Tipo impianto:
A radiatori
Tipo alimentazione:
Altro

Prezzo ridotto di €1 (2%%)

Ti interessa visionare l'immobile?

Fissa un appuntamento  Fissa un appuntamento

Richiedi informazioni

* Questi campi sono obbligatori

Calcola il tuo mutuo

Semplice e senza impegno
Anticipo

( % )
Mutuo

( % )

pochi semplici passi

inserisci i tuoi dati
Questionario completato
Grazie per aver richiesto un appuntamento senza impegno con un nostro Consulente del Credito e Assicurativo.

Hai inserito correttamente tutti i dati necessari e a breve riceverai una e-mail con un link da convalidare per inviare i tuoi dati.
Affiliato
Agenzia Carpidue Srl
Via Manzoni, 71/73 41012 Carpi (MO)

Il nostro staff


  • Massimiliano Botti
    Affiliato

  • Marco Bitassi
    Collaboratore

  • Pasquale Credentino
    Collaboratore

  • Rossella Madonna
    Collaboratrice

  • Antonio Venosa
    Responsabile
Via Manzoni, 71/73 41012 Carpi (MO)
Zona: Carpi Nord - Migliarina - Rovereto - Budrione
Mostra su mappa
Orari: LUNEDì - VENERDì 9.00 - 13.00 / 15.30 - 19.30 / SABATO 9.00 - 13.00
Affiliato
Agenzia Carpidue Srl
Via Manzoni, 71/73 41012 Carpi (MO)

2025 Tecnocasa Franchising S.p.A. - P. IVA 08365160152 - Via Monte Bianco 60/A 20089 Rozzano (MI). Ogni agenzia ha un proprio titolare ed è autonoma. Privacy policy | Policy utilizzo | Cookie policy