Porzione di bifamiliare in vendita

Carpi, Via Budrione Migliarina Parte Est - Budrione
€ 205.000
4 locali 4 locali
190 Mq 190 Mq
2 bagni 2 bagni

Porzione di bifamiliare in vendita

Carpi, Via Budrione Migliarina Parte Est - Budrione

Descrizione annuncio

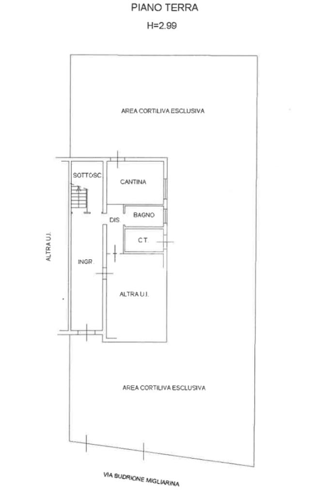
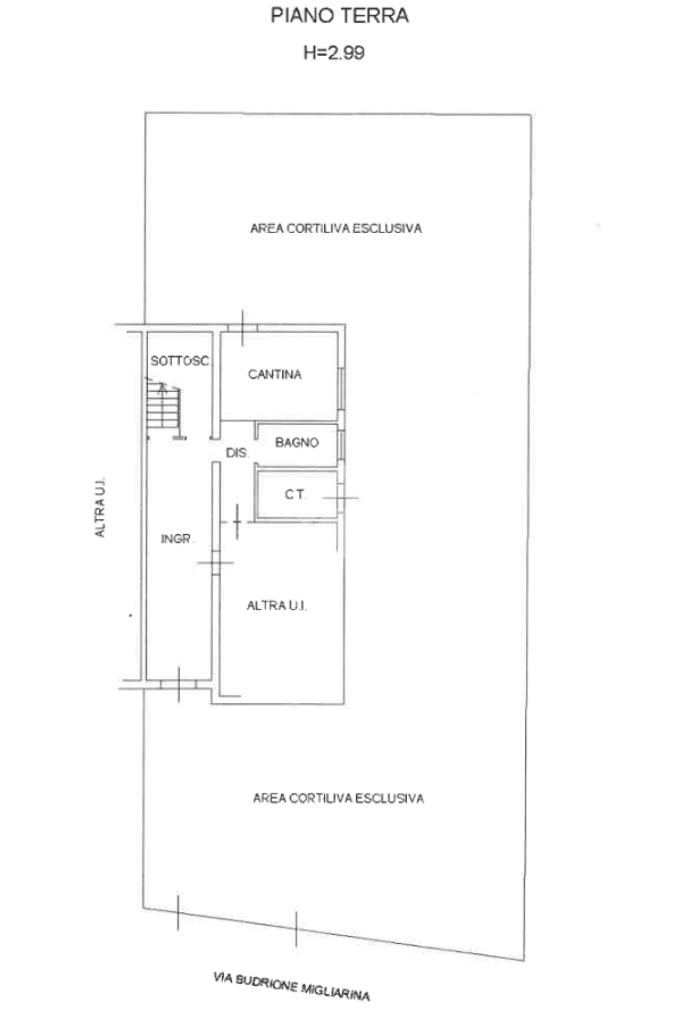
Budrione, nel comune di Carpi, si trova questa porzione di bifamiliare in vendita, ideale per chi cerca spazi ampi e luminosi.

L'immobile si sviluppa su più livelli e offre al suo interno quattro locali ben distribuiti, tra cui tre camere da letto. La proprietà dispone di due bagni e due balconi, che garantiscono una piacevole luminosità agli ambienti.

Il giardino privato rappresenta un'oasi di tranquillità, ideale per momenti di relax all'aperto.

Completano la proprietà un box auto e un posto auto esterno. Situata in una zona residenziale, questa casa offre il comfort dell'aria condizionata e la comodità di vivere in un contesto sereno, senza rinunciare alla vicinanza ai servizi di Carpi.

Per maggiori informazioni contattateci allo 059653377 oppure venite a trovarci presso il nostro ufficio sito in Viale Manzoni 71/73 Carpi

Mostra tutto

Nelle vicinanze

Ricariche auto elettriche Ricariche auto elettriche
Carpi Fossoli | EnelX
2,5 Km
Carpi Brunelleschi | EnelX
2,6 Km
Farmacia Farmacia
Farmacia GRECO
2,7 Km
Supermercati Supermercati
CONAD
2,7 Km
Famila
2,7 Km
Eurospin
2,8 Km
EuroSpin
2,8 Km
Mostra tutto

Caratteristiche

Rif.:
61106852
Piano:
2 di 2 (Piano su più livelli)
Box:
1
Posti auto:
1
Balconi:
2
Camere da letto:
3
Mostra tutto
Prezzo Prezzo
€ 205.000
Rata mutuo Rata mutuo
€ 948 / mese
Spese annue Spese annue
€ 1
Proponi il tuo prezzoProponi il tuo prezzo

Classe Energetica

G
G
G
G
G
G
G
G
G
EP invernale del fabbricato:
EP estiva del fabbricato:
Anno di costruzione:
1970
Riscaldamento:
Autonomo
Tipo impianto:
A radiatori
Tipo alimentazione:
Altro

Ti interessa visionare l'immobile?

Fissa un appuntamento  Fissa un appuntamento

Richiedi informazioni

* Questi campi sono obbligatori

Calcola il tuo mutuo

Semplice e senza impegno
Anticipo

( % )
Mutuo

( % )

pochi semplici passi

inserisci i tuoi dati
Questionario completato
Grazie per aver richiesto un appuntamento senza impegno con un nostro Consulente del Credito e Assicurativo.

Hai inserito correttamente tutti i dati necessari e a breve riceverai una e-mail con un link da convalidare per inviare i tuoi dati.
Affiliato
Agenzia Carpidue Srl
Via Manzoni, 71/73 41012 Carpi (MO)

Il nostro staff


  • Massimiliano Botti
    Affiliato

  • Marco Bitassi
    Collaboratore

  • Pasquale Credentino
    Collaboratore

  • Rossella Madonna
    Collaboratrice

  • Antonio Venosa
    Responsabile
Via Manzoni, 71/73 41012 Carpi (MO)
Zona: Carpi Nord - Migliarina - Rovereto - Budrione
Mostra su mappa
Orari: LUNEDì - VENERDì 9.00 - 13.00 / 15.30 - 19.30 / SABATO 9.00 - 13.00
Affiliato
Agenzia Carpidue Srl
Via Manzoni, 71/73 41012 Carpi (MO)

2025 Tecnocasa Franchising S.p.A. - P. IVA 08365160152 - Via Monte Bianco 60/A 20089 Rozzano (MI). Ogni agenzia ha un proprio titolare ed è autonoma. Privacy policy | Policy utilizzo | Cookie policy