Porzione di bifamiliare in vendita

Carpi, Via luxemburg - Budrione
€ 411.000
4 locali 4 locali
183 Mq 183 Mq
2 bagni 2 bagni

Porzione di bifamiliare in vendita

Carpi, Via luxemburg - Budrione

Descrizione annuncio

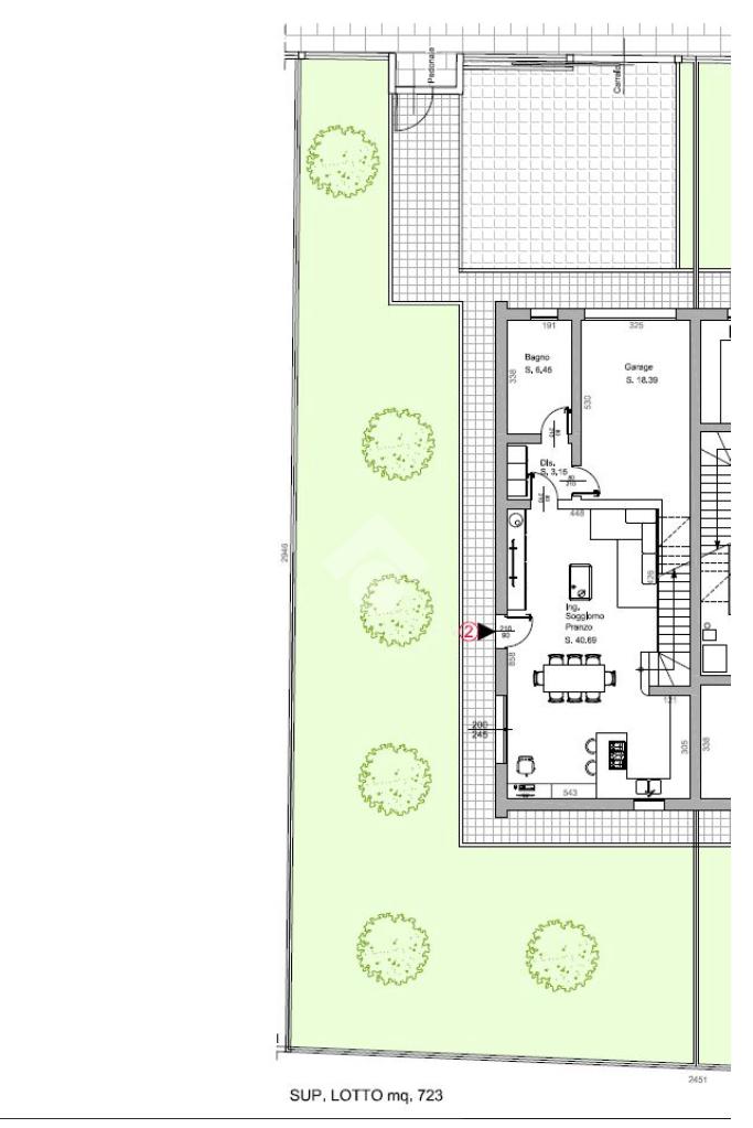
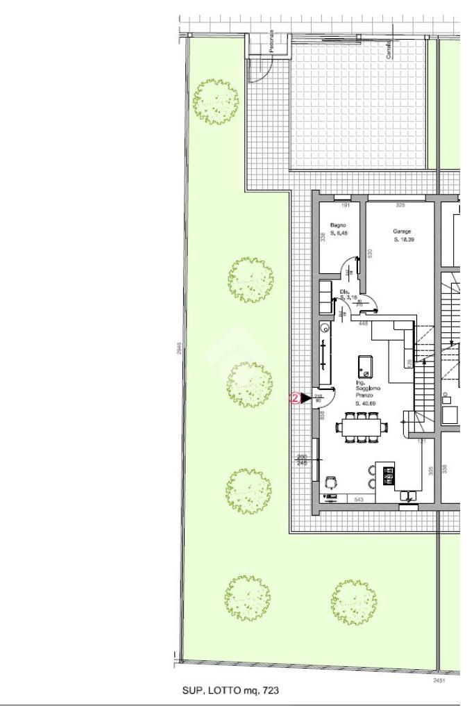
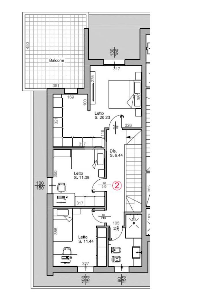
VILLA LUXEMBURG

Budrione, nel comune di Carpi, si propone in vendita una porzione di bifamiliare di nuova costruzione con consegna prevista nel 2026.

L'immobile, di 183 mq, si sviluppa su più livelli e offre spazi ben distribuiti. La zona giorno, di circa 40 mq, è ideale per momenti di convivialità. La proprietà comprende tre camere da letto, due bagni.

Un ampio terrazzo e un giardino privato di circa 270 mq completano l'immobile, garantendo spazi esterni per il relax e il tempo libero. L'abitazione è dotata di un box e un posto auto.

La classe energetica A4 assicura un'elevata efficienza, grazie al riscaldamento e raffrescamento a pavimento, una caldaia a pompa di calore e un impianto fotovoltaico da 3 kW. Un'opportunità unica per chi cerca comfort e sostenibilità in un contesto residenziale.

POSSIBILITA' DI PERSONALIZZARE SIA GLI SPAZI CHE LE FINITURE.

Per maggiori informazioni contattateci allo 059653377 oppure venite a trovarci presso il nostro ufficio sito in Viale Manzoni 71/73 Carpi

Mostra tutto

Nelle vicinanze

Ricariche auto elettriche Ricariche auto elettriche
Carpi Fossoli | EnelX
1,9 Km
Carpi Brunelleschi | EnelX
2,1 Km
Carpi Benassi | EnelX
3,0 Km
Farmacia Farmacia
Farmacia GRECO
2,1 Km
Supermercati Supermercati
CONAD
2,0 Km
Famila
2,3 Km
Eurospin
2,5 Km
EuroSpin
2,5 Km
MD
3,0 Km
Ristoranti Ristoranti
Ristorante l'Oste
2,8 Km
Mostra tutto

Caratteristiche

Rif.:
61116719
Piano:
1 di 1 (Piano su più livelli)
Box:
1
Posti auto:
1
Terrazzi:
1
Camere da letto:
3
Mostra tutto
Prezzo Prezzo
€ 411.000
Rata mutuo Rata mutuo
€ 1.960 / mese
Spese annue Spese annue
€ 1
Proponi il tuo prezzoProponi il tuo prezzo

Classe Energetica

A4
A4
A4
A4
A4
A4
A4
A4
A4
EP invernale del fabbricato:
EP estiva del fabbricato:
Anno di costruzione:
2026
Riscaldamento:
Autonomo
Tipo impianto:
A pavimento
Tipo alimentazione:
Altro

Ti interessa visionare l'immobile?

Fissa un appuntamento  Fissa un appuntamento

Richiedi informazioni

Clicca su Leggi per aprire l'informativa
* Questi campi sono obbligatori

Calcola il tuo mutuo

Semplice e senza impegno
Anticipo

( % )
Mutuo

( % )

pochi semplici passi

inserisci i tuoi dati
Questionario completato
Grazie per aver richiesto un appuntamento senza impegno con un nostro Consulente del Credito e Assicurativo.

Hai inserito correttamente tutti i dati necessari e a breve riceverai una e-mail con un link da convalidare per inviare i tuoi dati.
Affiliato
Agenzia Carpidue Srl
Via Manzoni, 71/73 41012 Carpi (MO)

Il nostro staff


  • Massimiliano Botti
    Affiliato

  • Marco Bitassi
    Collaboratore

  • Pasquale Credentino
    Collaboratore

  • Rossella Madonna
    Collaboratrice

  • Antonio Venosa
    Responsabile
Via Manzoni, 71/73 41012 Carpi (MO)
Zona: Carpi Nord - Migliarina - Rovereto - Budrione
Mostra su mappa
Orari: LUNEDì - VENERDì 9.00 - 13.00 / 15.30 - 19.30 / SABATO 9.00 - 13.00
Affiliato
Agenzia Carpidue Srl
Via Manzoni, 71/73 41012 Carpi (MO)

2026 Tecnocasa Franchising S.p.A. - P. IVA 08365160152 - Via Monte Bianco 60/A 20089 Rozzano (MI). Ogni agenzia ha un proprio titolare ed è autonoma. Privacy policy | Policy utilizzo | Cookie policy