Casa semindipendente in vendita

Novi Di Modena, Via Gavello
€ 69.000
2 locali 2 locali
85 Mq 85 Mq
1 bagno 1 bagno

Casa semindipendente in vendita

Novi Di Modena, Via Gavello

Descrizione annuncio

ESCLUSIVA! Nel tranquillo comune di Novi di Modena, si propone in vendita una porzione di casa semindipendente, ideale per chi cerca un investimento.

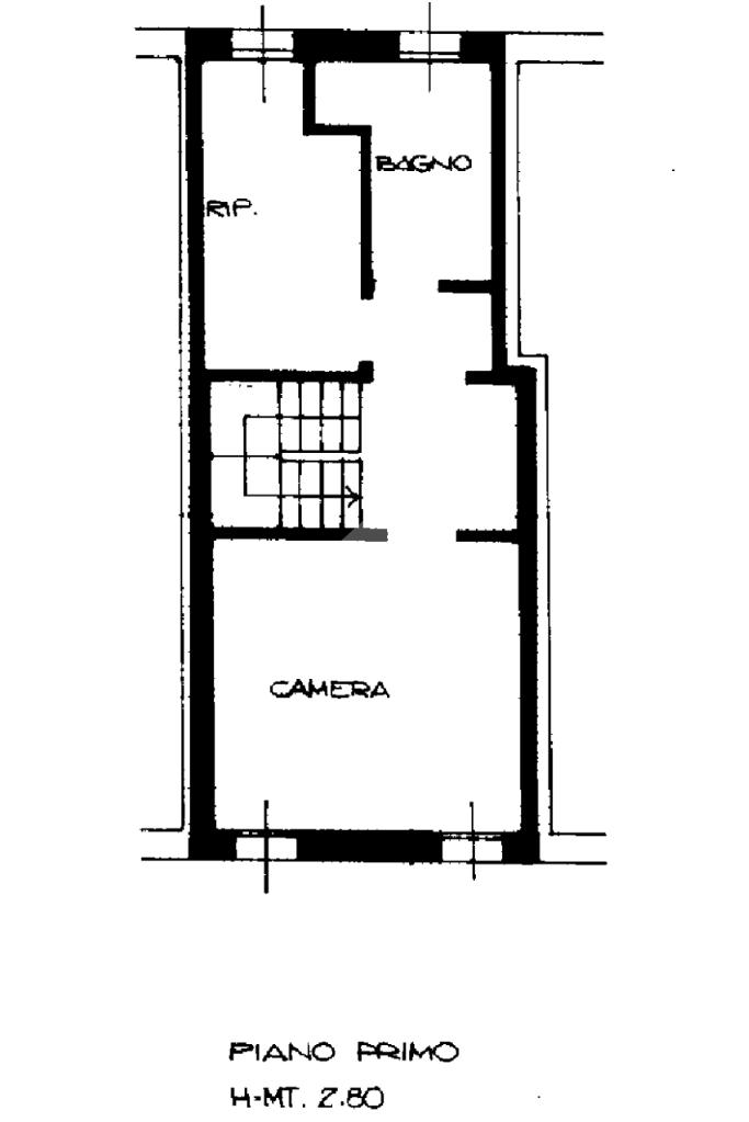
L'immobile, si sviluppa su più livelli, al piano terra abbiamo un soggiorno e una cucina separata, tramite scala in legno al primo piano la casa offre una camera da letto matrimoniale, un ulteriore stanza versatile e un bagno. Il tetto in legno, ristrutturato nel 1995, conferisce un tocco di calore e autenticità agli ambienti.

All'esterno, un giardino privato offre uno spazio verde dove rilassarsi e godere della tranquillità circostante.

Completa la proprietà un comodo posto auto. La casa è libera da subito, pronta per accogliere i nuovi proprietari.

Questa soluzione rappresenta un'opportunità unica per chi desidera vivere immerso nella natura, senza rinunciare alla comodità di una casa spaziosa e ben strutturata.

Per maggiori informazioni contattateci allo 059653377 oppure venite a trovarci presso il nostro ufficio sito in Viale Manzoni 71/73 Carpi

Mostra tutto

Nelle vicinanze

Trasporto pubblico Trasporto pubblico
Fermata Scuolabus
Fermata Scuolabus
870 m
Fermata Autobus
Fermata Autobus
1,2 Km
Scuole Scuole
Scuole
1,6 Km
Farmacia Farmacia
Farmacia Casari
1,8 Km
Supermercati Supermercati
Lidl
1,2 Km
Coop
1,4 Km
Bar Bar
Funky Bar
1,3 Km
Ristoranti Ristoranti
"DOGANA" RISTORANTE-PIZZERIA
3,0 Km
Mostra tutto

Caratteristiche

Rif.:
61110084
Piano:
1 di 1 (Piano su più livelli)
Posti auto:
1
Camere da letto:
2
Arredamento:
Parziale
Condizionamento:
Assente
Mostra tutto
Prezzo Prezzo
€ 69.000
Rata mutuo Rata mutuo
€ 319 / mese
Spese annue Spese annue
€ 1
Proponi il tuo prezzoProponi il tuo prezzo

Classe Energetica

G
G
G
G
G
G
G
G
G
EP invernale del fabbricato:
EP estiva del fabbricato:
Anno di costruzione:
1950
Riscaldamento:
Autonomo
Tipo impianto:
A radiatori
Tipo alimentazione:
Altro

Ti interessa visionare l'immobile?

Fissa un appuntamento  Fissa un appuntamento

Richiedi informazioni

* Questi campi sono obbligatori

Calcola il tuo mutuo

Semplice e senza impegno
Anticipo

( % )
Mutuo

( % )

pochi semplici passi

inserisci i tuoi dati
Questionario completato
Grazie per aver richiesto un appuntamento senza impegno con un nostro Consulente del Credito e Assicurativo.

Hai inserito correttamente tutti i dati necessari e a breve riceverai una e-mail con un link da convalidare per inviare i tuoi dati.
Affiliato
Agenzia Carpidue Srl
Via Manzoni, 71/73 41012 Carpi (MO)

Il nostro staff


  • Massimiliano Botti
    Affiliato

  • Marco Bitassi
    Collaboratore

  • Pasquale Credentino
    Collaboratore

  • Rossella Madonna
    Collaboratrice

  • Antonio Venosa
    Responsabile
Via Manzoni, 71/73 41012 Carpi (MO)
Zona: Carpi Nord - Migliarina - Rovereto - Budrione
Mostra su mappa
Orari: LUNEDì - VENERDì 9.00 - 13.00 / 15.30 - 19.30 / SABATO 9.00 - 13.00
Affiliato
Agenzia Carpidue Srl
Via Manzoni, 71/73 41012 Carpi (MO)

2025 Tecnocasa Franchising S.p.A. - P. IVA 08365160152 - Via Monte Bianco 60/A 20089 Rozzano (MI). Ogni agenzia ha un proprio titolare ed è autonoma. Privacy policy | Policy utilizzo | Cookie policy