Casa semindipendente in vendita

Novi Di Modena, Via Mazzarana
€ 89.000
3 locali 3 locali
95 Mq 95 Mq
1 bagno 1 bagno

Casa semindipendente in vendita

Novi Di Modena, Via Mazzarana

Descrizione annuncio

ESCLUSIVA! A Rovereto sul secchia, proponiamo in vendita una casa semindipendente, ideale per chi cerca una soluzione abitativa su più livelli.

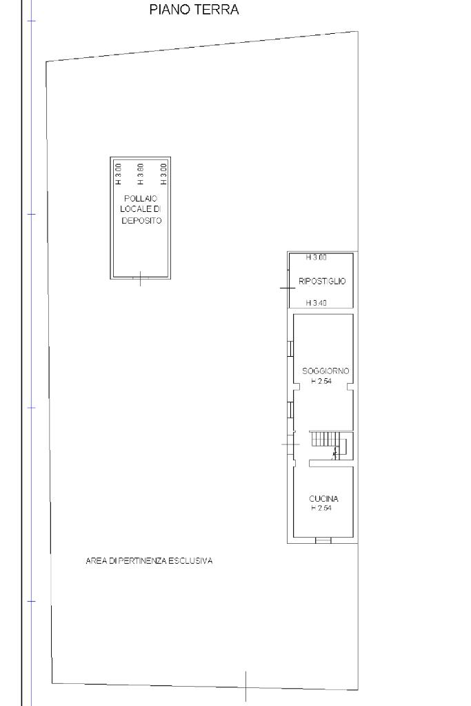
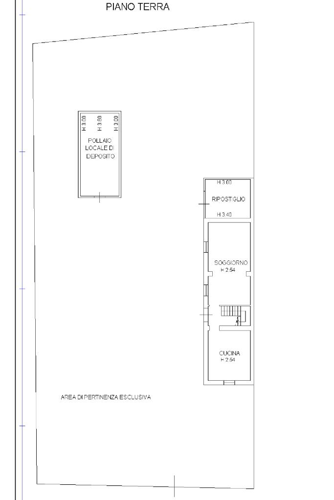
L'immobile, è composto da tre locali di cui, piano terra composto da soggiorno con camino e cucina abitabile separata oltre ad un bagno. Al primo piano troviamo due camere da letto e un bagno cieco; tramite una scala retrattile vi è un' ampia soffitta ad uso ripostiglio.

Uno dei punti di forza è l'ampio giardino di 400 mq, perfetto per chi ama gli spazi verdi. La proprietà ristrutturata anni 90 circa, con infissi in doppio vetro e un rinforzamento del solaio rifatto post sisma.

E' presente un box auto con un deposito.

Una soluzione ideale per gli amanti della tranquillità e della campagna ma senza rinunciare alla vicinanza al centro di Rovereto. La zona è ben servita, offrendo comodità e facilità di accesso ai principali servizi.

Questa porzione di casa rappresenta un'opportunità unica per chi desidera vivere in un contesto tranquillo ma non isolato.

Mostra tutto

Nelle vicinanze

Ricariche auto elettriche Ricariche auto elettriche
Polisportiva Roveretana | EnelX
1,7 Km
Bar Bar
Bar Sport
1,6 Km
Ristoranti Ristoranti
Valle Dell Eden
2,7 Km
Mostra tutto

Caratteristiche

Rif.:
61187633
Piano:
1 di 3 (Piano su più livelli)
Posti auto:
1
Camere da letto:
2
Arredamento:
Parziale
Condizionamento:
Assente
Mostra tutto
Prezzo Prezzo
€ 89.000
Rata mutuo Rata mutuo
€ 425 / mese
Spese annue Spese annue
€ 1
Proponi il tuo prezzoProponi il tuo prezzo

Classe Energetica

G
G
G
G
G
G
G
G
G
EP invernale del fabbricato:
EP estiva del fabbricato:
Anno di costruzione:
1950
Riscaldamento:
Autonomo
Tipo impianto:
Ad aria
Tipo alimentazione:
Altro

Ti interessa visionare l'immobile?

Fissa un appuntamento  Fissa un appuntamento

Richiedi informazioni

Clicca su Leggi per aprire l'informativa
* Questi campi sono obbligatori

Calcola il tuo mutuo

Semplice e senza impegno
Anticipo

( % )
Mutuo

( % )

pochi semplici passi

inserisci i tuoi dati
Questionario completato
Grazie per aver richiesto un appuntamento senza impegno con un nostro Consulente del Credito e Assicurativo.

Hai inserito correttamente tutti i dati necessari e a breve riceverai una e-mail con un link da convalidare per inviare i tuoi dati.
Affiliato
Agenzia Carpidue Srl
Via Manzoni, 71/73 41012 Carpi (MO)

Il nostro staff


  • Massimiliano Botti
    Affiliato

  • Marco Bitassi
    Collaboratore

  • Pasquale Credentino
    Collaboratore

  • Rossella Madonna
    Collaboratrice

  • Antonio Venosa
    Responsabile
Via Manzoni, 71/73 41012 Carpi (MO)
Zona: Carpi Nord - Migliarina - Rovereto - Budrione
Mostra su mappa
Orari: LUNEDì - VENERDì 9.00 - 13.00 / 15.30 - 19.30 / SABATO 9.00 - 13.00
Affiliato
Agenzia Carpidue Srl
Via Manzoni, 71/73 41012 Carpi (MO)

2026 Tecnocasa Franchising S.p.A. - P. IVA 08365160152 - Via Monte Bianco 60/A 20089 Rozzano (MI). Ogni agenzia ha un proprio titolare ed è autonoma. Privacy policy | Policy utilizzo | Cookie policy