Villa a schiera in vendita

Novi Di Modena, Via Filzi - Rovereto
€ 319.000
4 locali 4 locali
150 Mq 150 Mq
3 bagni 3 bagni

Villa a schiera in vendita

Novi Di Modena, Via Filzi - Rovereto

Descrizione annuncio

ESCLUSIVA! NUOVO PROGETTO DA SOGNO

Rovereto sulla Secchia, è disponibile una moderna villa a schiera di nuova costruzione, progettata per offrire comfort e sostenibilità.

Un nuovo progetto che rivoluzionerà la zona di Rovereto s/S

Con una superficie di 150 mq commerciali distribuita su più livelli, l'abitazione si compone di quattro locali, tra cui abbiamo un ingresso su un'ampia e luminosa zona living con cucina separata, oppure in alternativa uno zona open space; oltre ad bagno e il garage di 18mq annesso all'abitazione.

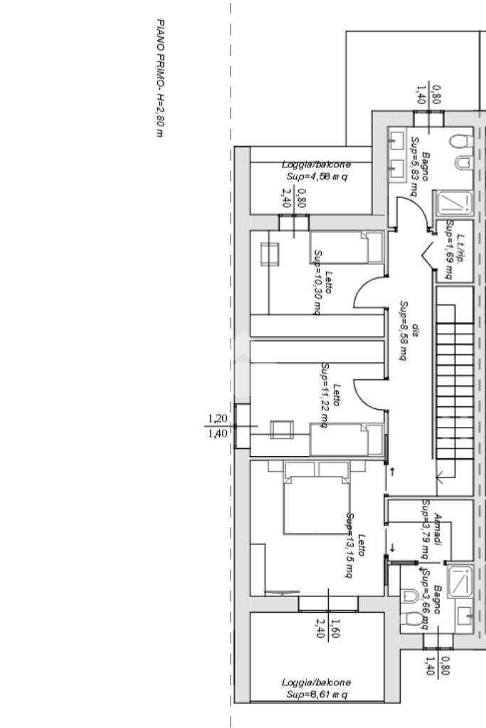
Salendo al piano primo vi è la zona notta composta da due camere 3/4 tra cui una con loggia, bagno di servizio ed una suite matrimoniale con cabina armadio,bagno privato e una loggia dalle dimensioni generose.

Il giardino privato che abbraccia tre lati dell'abitazione offre un grande spazio verde esclusivo, dove goderti le tue giornate estive; mentre il box e il posto auto garantiscono comodità di parcheggio.

Il riscaldamento a pavimento, cappappotto termico, tetto isolato, infissi in pvc, tapparelle motorizzate e l'impianto fotovoltaico da 3.5 kW contribuiscono a un'elevata efficienza termica ed acustica che garantirà una classe energetica A4.

È possibile personalizzare le finiture e gli spazi interni, rendendo questa villa bifamiliare un'opportunità unica per chi cerca una casa moderna e funzionale.

Per maggiori informazioni contattaci allo 059653377 oppure vieni a trovarci presso il nostro ufficio sito in Viale Manzoni 71/73 Carpi

Mostra tutto

Nelle vicinanze

Ricariche auto elettriche Ricariche auto elettriche
Polisportiva Roveretana | EnelX
680 m
Rovereto sul Secchia Pascoli | EnelX
1,4 Km
Bar Bar
Bar Sport
520 m
Ristoranti Ristoranti
Valle Dell Eden
560 m
Locanda Trattoria "Laghi Paradiso"
1,9 Km
Mostra tutto

Caratteristiche

Rif.:
61158323
Piano:
1 di 2 (Piano su più livelli)
Box:
1
Posti auto:
1
Balconi:
2
Terrazzi:
1
Mostra tutto
Prezzo Prezzo
€ 319.000
Rata mutuo Rata mutuo
€ 1.522 / mese
Spese annue Spese annue
€ 0
Proponi il tuo prezzoProponi il tuo prezzo

Classe Energetica

A4
A4
A4
A4
A4
A4
A4
A4
A4
EP invernale del fabbricato:
EP estiva del fabbricato:
Anno di costruzione:
2026
Riscaldamento:
Autonomo
Tipo impianto:
A pavimento
Tipo alimentazione:
Altro

Ti interessa visionare l'immobile?

Fissa un appuntamento  Fissa un appuntamento

Richiedi informazioni

Clicca su Leggi per aprire l'informativa
* Questi campi sono obbligatori

Calcola il tuo mutuo

Semplice e senza impegno
Anticipo

( % )
Mutuo

( % )

pochi semplici passi

inserisci i tuoi dati
Questionario completato
Grazie per aver richiesto un appuntamento senza impegno con un nostro Consulente del Credito e Assicurativo.

Hai inserito correttamente tutti i dati necessari e a breve riceverai una e-mail con un link da convalidare per inviare i tuoi dati.
Affiliato
Agenzia Carpidue Srl
Via Manzoni, 71/73 41012 Carpi (MO)

Il nostro staff


  • Massimiliano Botti
    Affiliato

  • Marco Bitassi
    Collaboratore

  • Pasquale Credentino
    Collaboratore

  • Rossella Madonna
    Collaboratrice

  • Antonio Venosa
    Responsabile
Via Manzoni, 71/73 41012 Carpi (MO)
Zona: Carpi Nord - Migliarina - Rovereto - Budrione
Mostra su mappa
Orari: LUNEDì - VENERDì 9.00 - 13.00 / 15.30 - 19.30 / SABATO 9.00 - 13.00
Affiliato
Agenzia Carpidue Srl
Via Manzoni, 71/73 41012 Carpi (MO)

2026 Tecnocasa Franchising S.p.A. - P. IVA 08365160152 - Via Monte Bianco 60/A 20089 Rozzano (MI). Ogni agenzia ha un proprio titolare ed è autonoma. Privacy policy | Policy utilizzo | Cookie policy